New England | 1-planshus
Portland 1
Husnummer: POR1-NEW
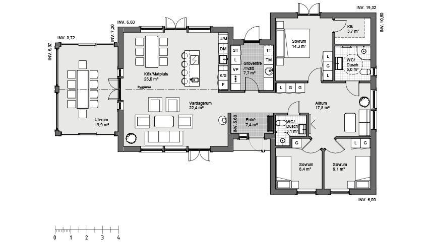
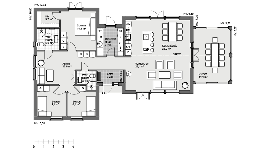
Portland består av två huskroppar, där förbindelsen mellan de båda, från framsidan är huvudentré och från baksidan, vardagsentré i kombination med tvättstuga.
I huskroppen direkt till höger i entrén möter något som påminner om gamla dagars storstuga. Ett härligt rum där kök, matplats och vardagsrum blir ett, och där det nästan 4 meter höga ryggåstaket i kombination med generösa glasytor bjuder på en fantastisk känsla av rymd och ljus. Härifrån går man direkt till uterummet som med sina stora fönsterpartier blir den perfekta platsen för den som tillsammans med sina vänner vill möta årstidens växlingar.
Till vänster i entrén når man husets sov-del. Centrum i denna del är ett eget litet vardagsrum, där exempelvis familjens tonåringar kan dra sig tillbaka med sina kompisar. Härifrån når man föräldrasovrummet som både har egen wc/dusch och klädkammare, samt de båda andra sovrummen med gemensam wc/dusch.

Husfakta
- Boyta 129,1 m²
- Byggyta 170,2 m²
- Antal sovrum 3 st
Planritningar
Klicka på planritningen för att förstora den
Fasad