Klassiskt | 1-planshus
Karlslund 1
Husnummer: KARL1-KLA
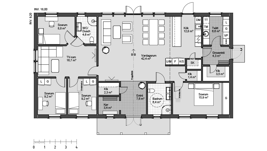
När man kommer in i hallen möts man av det härliga ljuset från vardagsrummet, som med sitt ryggåstak och stora fönsterpartier blir något av husets nav. Det rymliga köket blir en naturlig del av de sociala ytorna där matlagning ofta är en naturlig del av gemenskapen. Föräldrasovrummet ligger separat och har nära till wc/dusch. Övriga sovrum är väl tilltagna och ligger i direkt anslutning till ett rymligt allrum, med eget badrum. Groventré med en praktisk klädkammare och separat tvättstuga ligger i direkt anslutning till köket.

Husfakta
- Boyta 165,6 m²
- Byggyta 194,5 m²
- Antal sovrum 4 st
Planritningar
Klicka på planritningen för att förstora den
Fasad