Herrgård
Garage 7,0 x 13,0
Husnummer: GAR-HER-7,0x13,0
Utforma er egen herrgårdsmiljö med en praktfull gårdsbild.
Våra komplementbyggnader uppförs med samma vackra detaljrikedom som mangårdsbyggnaderna och skapar således ett tilltalande helhetsintryck.
Komplementbyggnaden skräddarsys efter era önskemål och behov där faktorer såsom antalet garageplatser, rumsindelningar och typ av funktion får styra utformningen.

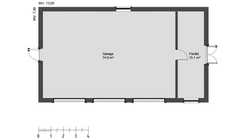
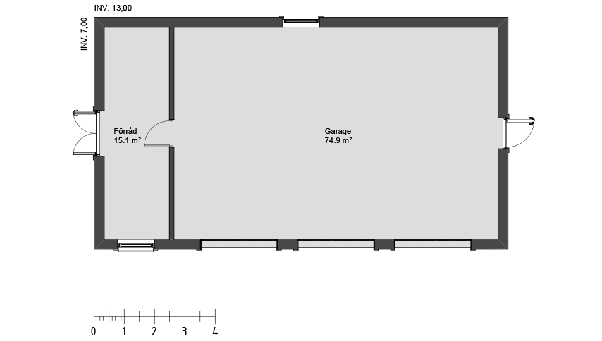
Husfakta
- Golvyta 91 m²
- Byggyta 104,6 m²
Planritningar
Klicka på planritningen för att förstora den
Fasad