Klassiskt | 2-planshus
Brudbäcken 2
Husnummer: BRU2-KLA
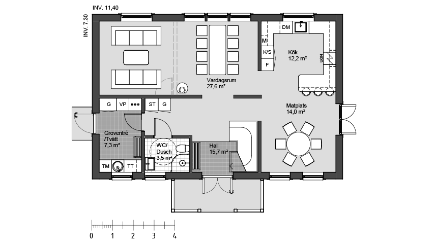
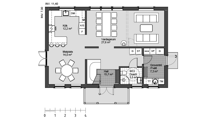
Det förhöjda vägglivet och de vackra snickeridetaljerna gör att Brudbäcken är ett hus, djupt förankrat i den klassiska landsbygdstraditionen. Köket och matplatsen i anslutning till vardagsrummet ger en härlig möjlighet till social gemenskap. Antingen vid bardisken, framför brasan eller vid de öppna pardörrarna en ljummen sommarkväll.
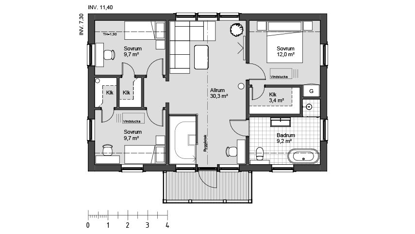
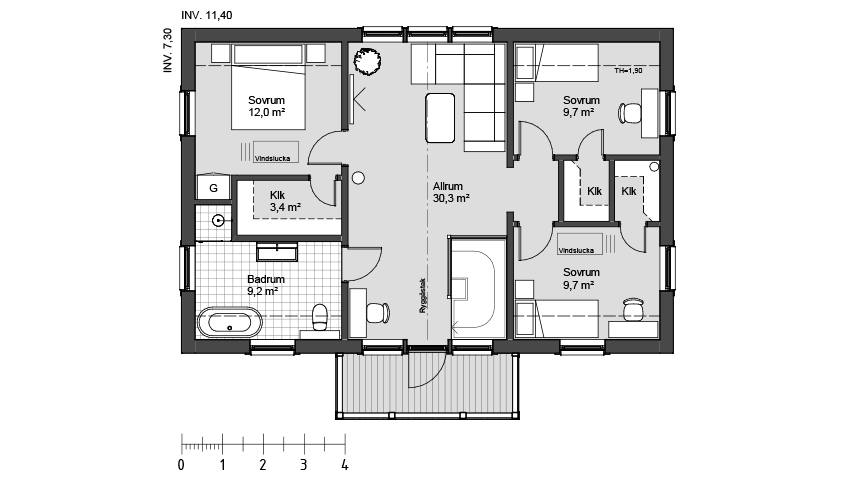
På övervåningen löper ett 3,5 meter högt ryggåstak genom hela allrummet vilket ger en härlig känsla av rymd och ljus. Här finns också tre rejäla sovrum med egen klädkammare och i anslutning till allrummet, ett ljust och rymligt badrum.

Husfakta
- Boyta entrévåning 83,2 M²
- Boyta övervåning 83,2 M²
- Total boyta 166,4 M²
- Byggyta 103,1 M²
- Antal Sovrum 3 - 4 st
Planritningar
Klicka på planritningen för att förstora den
Fasad